Trilocale in vendita

Cagliari, Via dei Campi - Pirri
€ 239.000
3 locali 3 locali
80 Mq 80 Mq
1 bagno 1 bagno

Trilocale in vendita

Cagliari, Via dei Campi - Pirri

Descrizione annuncio

Tecnocasa Pirri Centro propone in vendita un'interessante soluzione immobiliare di nuova costruzione, posizionata in prossimità di numerose attività commerciali.
Ci troviamo nella zona di Vesalio, più precisamente in Via dei Campi

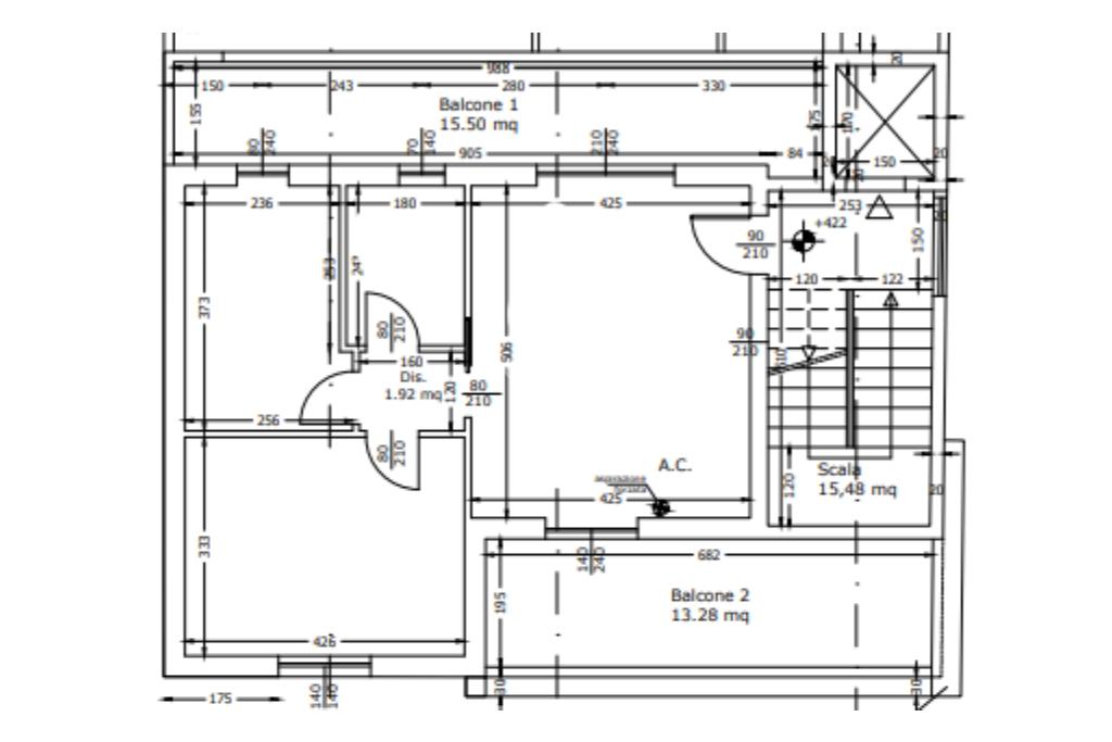
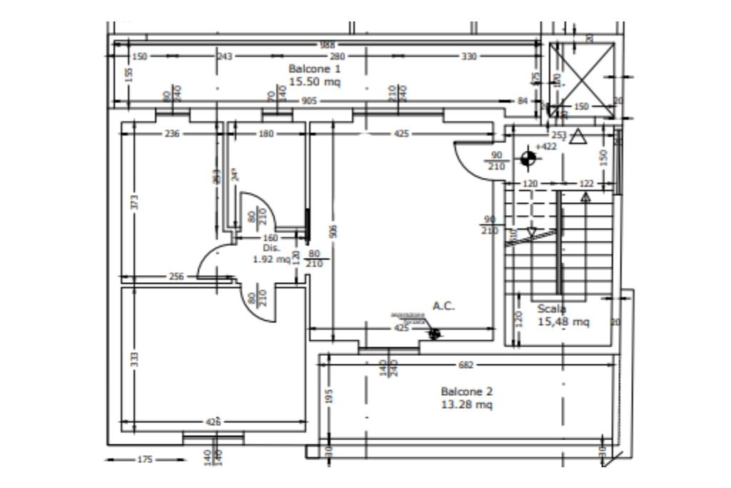
L'appartamento, tipologia trilocale, è situato al secondo ed ultimo piano, di una moderna palazzina composta solamente da tre unità abitative e comodamente servita da ascensore

L'immobile di circa 80 mq si distingue per la luminosità degli ambienti ed è la sintesi perfetta tra comfort moderno ed efficienza energetica.

L'appartamento dispone di un luminoso soggiorno con angolo cottura che affaccia su entrambe le ampie verande di 15mq ciascuna, una delle quali è dotata di predisposizione per cucina esterna e zona lavanderia

Proseguendo verso la zona notte troviamo il disimpegno, il bagno finestrato con box doccia, la camera matrimoniale e una camera singola che gode di affaccio diretto sulla veranda

Ulteriori caratteristiche:
- Posto auto di proprietà
- Risparmio Energetico: Impianto fotovoltaico privato da 1,5 kW.
- Zero IVA: Acquisto soggetto a imposta di registro (notevole risparmio economico)

Contattaci per avere maggiori informazioni e organizzare la tua visita!

Mostra tutto

Nelle vicinanze

Trasporto pubblico Trasporto pubblico
Monserrato
Monserrato
2,1 Km
Caracalla
Caracalla
620 m
Centro Commerciale
Centro Commerciale
790 m
Italia (fronte Vetreria)
Italia (fronte Vetreria)
400 m
Italia (Vetreria)
Italia (Vetreria)
410 m
Scuole Scuole
Scuola Media
160 m
Istituto Professionale "B. Cellini"
170 m
Scuole Elementari Statali
520 m
Scuole
530 m
Scuola Primaria "Marcello Serra"
690 m
Farmacia Farmacia
Farmacia
590 m
Dottor Fasciolo
590 m
Parafarmacia Conad
790 m
Farmacia Dott. Orrù
2,4 Km
Parafarmacia
2,6 Km
Ospedali Ospedali
Ospedale Microcitemico
1,3 Km
Ospedale Oncologico "Armando Businco"
1,3 Km
Ospedale San Michele
1,6 Km
Pronto Soccorso
1,7 Km
Policlinico Universitario "Duilio Casula"
2,3 Km
Supermercati Supermercati
Nonna Isa
460 m
Gieffe
650 m
Conad
790 m
EuroSpin
950 m
Conad Superstore
1,2 Km
Negozi Negozi
Metà
1,2 Km
Pizzeria Forno Napoletano
1,5 Km
Negozi
1,8 Km
I Cherchi
1,8 Km
L'angolo dei sapori
2,0 Km
Bar Bar
Bar
530 m
Bar Lobina
1,8 Km
Coco
1,8 Km
Bar Nobel
2,0 Km
Red Rocks cafe
2,3 Km
Ristoranti Ristoranti
Time Out
840 m
Ristoranti
1,1 Km
Il Volo
1,2 Km
Evelyn Pizza
1,7 Km
L'angolo della pizza
2,0 Km
Mostra tutto

Caratteristiche

Rif.:
61167488
Piano:
2 di 3 con ascensore (Piano medio)
Posti auto:
1
Terrazzi:
2
Camere da letto:
2
Arredamento:
Assente
Mostra tutto
Prezzo Prezzo
€ 239.000
Rata mutuo Rata mutuo
€ 1.126 / mese
Spese annue Spese annue
€ 0
Proponi il tuo prezzoProponi il tuo prezzo

Classe Energetica

A4
A4
A4
A4
A4
A4
A4
A4
A4
EP globale non rinnovabile:
160.00 kW h/m² anno
EP invernale del fabbricato:
EP estiva del fabbricato:
Anno di costruzione:
2025
Riscaldamento:
Autonomo
Tipo impianto:
Ad aria
Tipo alimentazione:
Aria

Ti interessa visionare l'immobile?

Fissa un appuntamento  Fissa un appuntamento

Richiedi informazioni

Clicca su Leggi per aprire l'informativa
* Questi campi sono obbligatori

Calcola il tuo mutuo

Semplice e senza impegno
Anticipo

( % )
Mutuo

( % )

pochi semplici passi

inserisci i tuoi dati
Questionario completato
Grazie per aver richiesto un appuntamento senza impegno con un nostro Consulente del Credito e Assicurativo.

Hai inserito correttamente tutti i dati necessari e a breve riceverai una e-mail con un link da convalidare per inviare i tuoi dati.
Affiliato
Monreale Mediazioni Srl
P.zza Italia, 17 09134 Cagliari (CA)

Il nostro staff


  • Mattia Kevin Floris
    Collaboratore

  • Edoardo Ghiglieri
    Collaboratore

  • Alessia Martis
    Coordinatrice

  • Mauro Sanna
    Collaboratore

  • Michele Tristano
    Collaboratore

  • Davide Caddeo
    Affiliato
P.zza Italia, 17 09134 Cagliari (CA)
Zona: Pirri Centro
Mostra su mappa
Affiliato
Monreale Mediazioni Srl
P.zza Italia, 17 09134 Cagliari (CA)

2026 Tecnocasa Franchising S.p.A. - P. IVA 08365160152 - Via Monte Bianco 60/A 20089 Rozzano (MI). Ogni agenzia ha un proprio titolare ed è autonoma. Privacy policy | Policy utilizzo | Cookie policy